ANOTHER HAPPY CUSTOMER
Sophie’s Bathroom Transformation | Full Wet Room Installation
Time To Complete
5 Days
Date Completed
12/09/2025
JOB NAME & TYPE
Sophie’s Bathroom Transformation | Full Wet Room Installation
Wet Room
WHAT WE DID
Sophie was finding her existing bathroom increasingly difficult to use. It featured a shower cubicle with a large step, which made independent bathing a challenge. She explained that she couldn’t easily get over the lip of the bath and was looking for a modern, accessible solution.
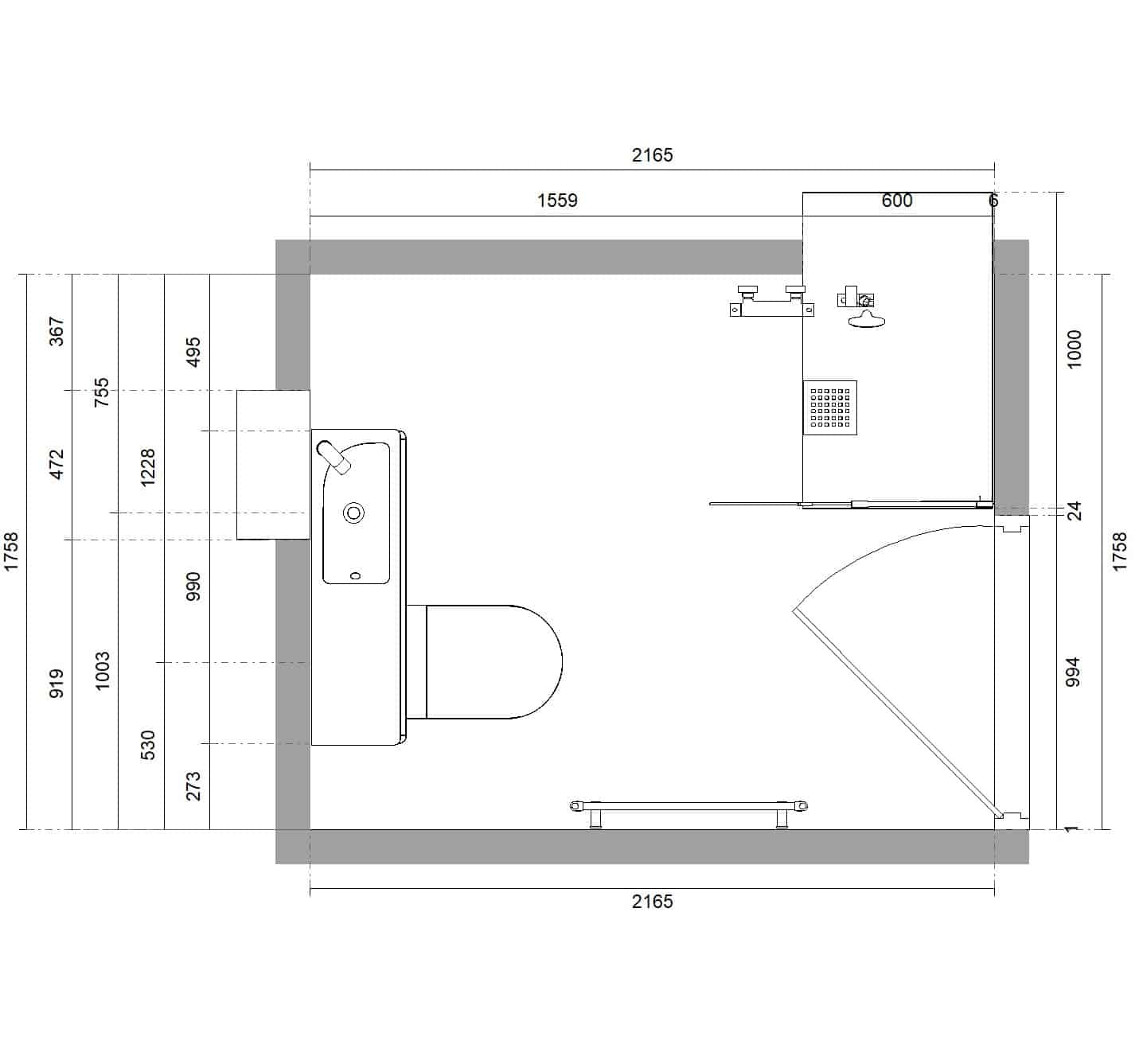
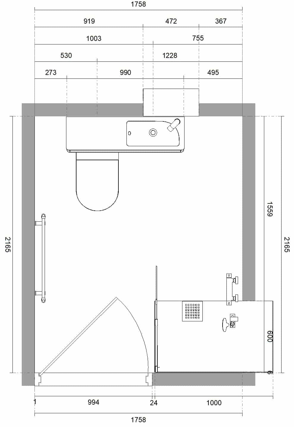
To meet Sophie’s needs, we removed the old fixtures and completed a full wet room installation. This involved tanking the room and creating a seamless, level access floor, completely removing the hazardous step.
The end result is a contemporary, open, and stylish wet room that allows for safe, independent bathing. Sophie now has a beautiful, practical space that has restored her confidence and comfort in her own home.
WHAT WAS INCLUDED?
- Professional CAD Design Service
- Easy Clean Walls & Flooring
- Grab Rails Fitted Around You And Your Needs
- All waste removed & recycled
- Expert fitting from our employed team, no subcontractors



