ANOTHER HAPPY CUSTOMER
Julie’s Bathroom Transformation | Full Wet Room Installation
Time To Complete
3 Days
Date Completed
16/09/2025
JOB NAME & TYPE
Julie’s Bathroom Transformation | Full Wet Room Installation
Wet Room
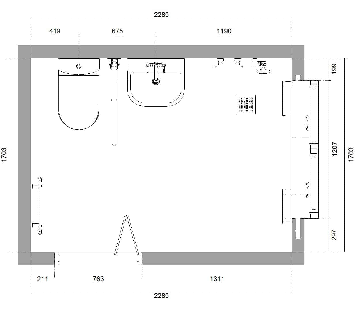
WHAT WE DID
Julie’s previous bathroom presented a significant challenge: a traditional bath with a large step made independent bathing difficult and unsafe, as she couldn’t get over the lip of the bath.
Our goal was to eliminate this barrier and create a modern, accessible space. To achieve this, we removed the old bath entirely and carried out a full wet room installation. This conversion means the entire floor area is waterproof, allowing for a level-access shower—there are no steps or lips to navigate.
The end result is a beautiful, contemporary bathroom that provides Julie with safe, independent bathing. She now has complete peace of mind and the freedom to use her bathroom without assistance, all within a sleek, modern design.
WHAT WAS INCLUDED?
- Professional CAD Design Service
- Easy Clean Walls & Flooring
- Grab Rails Fitted Around You And Your Needs
- All waste removed & recycled
- Expert fitting from our employed team, no subcontractors






